|
|
Почта: krakov@netbynet.ru Наш телефон 8-499-124-2425
Лира, стр. 2
Приведем
несколько примеров расчетов с использованием ПК Лира 9.2.
Пример
1. По программе Лира-арм (локальный) требуется
подобрать арматуру в нормальном сечении железобетонного элемента в
соответствии со СНиП 2.03.01-84*. Учитываются
условия прочности и трещиностойкости. Элемент
работает на внецентренное сжатие: N
= 100 тс; М = 30 тсм; коэффициенты надежности
по нагрузке и учета длительности нагрузки
γb2 равны соответственно 1.1 и 0.9; конструкция
статически неопределимая, сборная. Физическая и расчетная длина элемента
равна 1 м,
размеры сечения 400x600 мм. Конструкция относится к 3-й категории трещиностойкости и эксплуатируется в закрытом помещении
при естественной влажности. Арматура состоит из четырех одинаковых стержней
класса A-III, расположенных по углам. Расстояния от центра тяжести
сечения стержней до ближайших граней равны 40 мм.
В результате расчетов
оказалось, что при классах бетона В20 и В60 площадь поперечного сечения
каждого стержня составляет 3.72 см2
(диаметр 22 мм),
т.е. класс бетона на армирование не влияет. При расчетах по программе
«ОМ СНиП Железобетон» при классах бетона В20 и
В60 диаметр каждого стержня равен соответственно 22 мм и 14 мм, т.е. при повышении
класса бетона армирование существенно падает. Таким образом, при классе бетона В60 по ПК Лира будет поставлено арматуры
в 2.5 раза больше требуемой по СНиП.
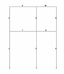
Пример
2. Рассмотрим Пример 1 расчета
плоской рамы, приведенный в Руководстве пользователя ПК Лира (см. Рисунок,
цифрами обозначены номера конечных элементов).

Для сечения 1 элемента 3
из расчета получены следующие сочетания наиболее опасных комбинаций
усилий N и M:
|
№№ сочетания
|
N, тс
|
M, тсм
|
|
1
2
3
4
|
-14.644
-16.290
-19.425
-20.906
|
6.7325
-6.3056
6.6002
-5.1340
|
Рассматриваемое
сечение имеет прямоугольную форму размером 40x60 см. Рама изготовляется из
тяжелого бетона класса В25 естественного твердения. Элемент армируется 4
одинаковыми стержнями из арматуры класса А-III,
расположенными по углам сечения, расстояния от центра тяжести стержней до
ближайших граней равны 3 см.
По программе Лира-арм (локальный) требуется
определить площади сечения стержней из условий прочности и трещиностойкости. Допустимая ширина кратковременного и
длительного раскрытия трещин составляет соответственно 0.4 и 0.3 мм. Коэффициенты
расчетной длины элемента в обоих направлениях равны 0.7.
Если
рассчитать сечение на первые три сочетания нагрузок, то площадь поперечного
сечения каждого арматурного стержня окажется равной 1.2 см2
(диаметр 14 мм).
Если же дополнительно ввести 4-е сочетание нагрузок, то оказывается, что
армирования не требуется, т.е. бетонное сечение воспринимает все
нагрузки. Этот результат явно является
неправильным.
Пример 3. Условия расчетов оставим, в основном, теми же, что
и в Примере 1. Будем считать, что на элемент действуют два сочетания
нагрузок: N = 100 тс; М = 30 тсм
и N = 20 тс; М = 21.9 тсм.
В таблице РСУ зададим эти два сочетания как несовместные. Из расчета по ПК
Лира получаем, что наиболее опасным является первое сочетание N =
100 тс; М = 30 тсм, а второе
сочетание N = 20 тс; М = 21.9 тсм
отбрасывается как менее опасное. Между тем, если по программе Лира-арм определить армирование отдельно для первого и
второго сочетания, то диаметры стержней окажутся равными соответственно 22 и 32 мм. Таким образом, при
выборе РСУ наиболее опасные сочетания, дающие максимальное армирование,
пропускаются. По результатам ПК Лира, арматуры
будет поставлено в 2.1 раза меньше требуемой.
|